Progetti
Tipologia
scuole
Luogo
Dozza (BO)
Anno
2019-2024
Cliente
COMUNE DI DOZZA
Importo lavoro
791.780,54
Superficie
-
Prestazione svolta da: Ing. Gianni Giovannini, Arch. Renzo Crociati
Prestazioni eseguite: Progettazione preliminare, definitiva, esecutiva edile e strutture, Coordinamento alla sicurezza in fase di progettazione ed esecuzione, Prevenzione incendi, Direzione Lavori generale e specialistica edile e strutture
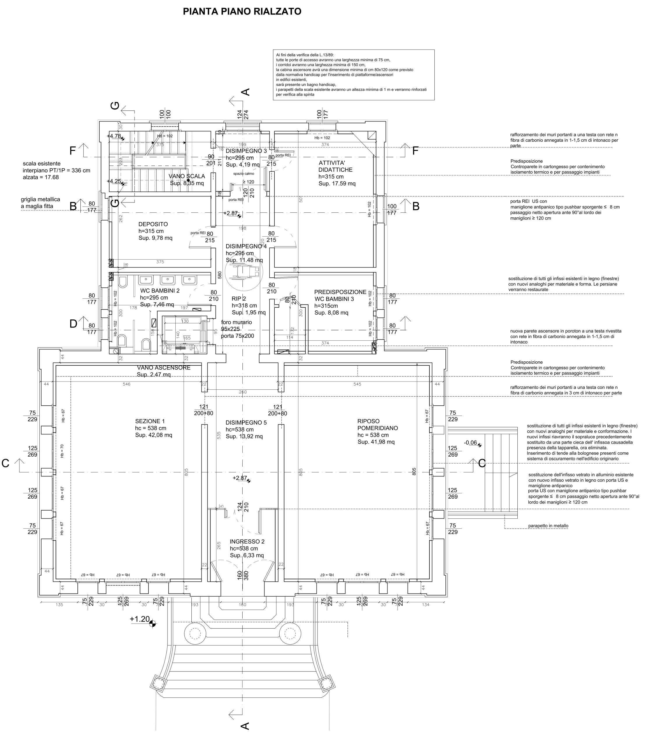
Il progetto ha previsto i seguenti interventi:
RESTAURO E RISANAMENTO CONSERVATIVO, MIGLIORAMENTO SISMICO, ADEGUAMENTO PREVENZIONE INCENDI, EFFICIENTAMENTO ENERGETICO, SUOPERAMENTO DELLE BARRIERE ARCHITETTONICHE
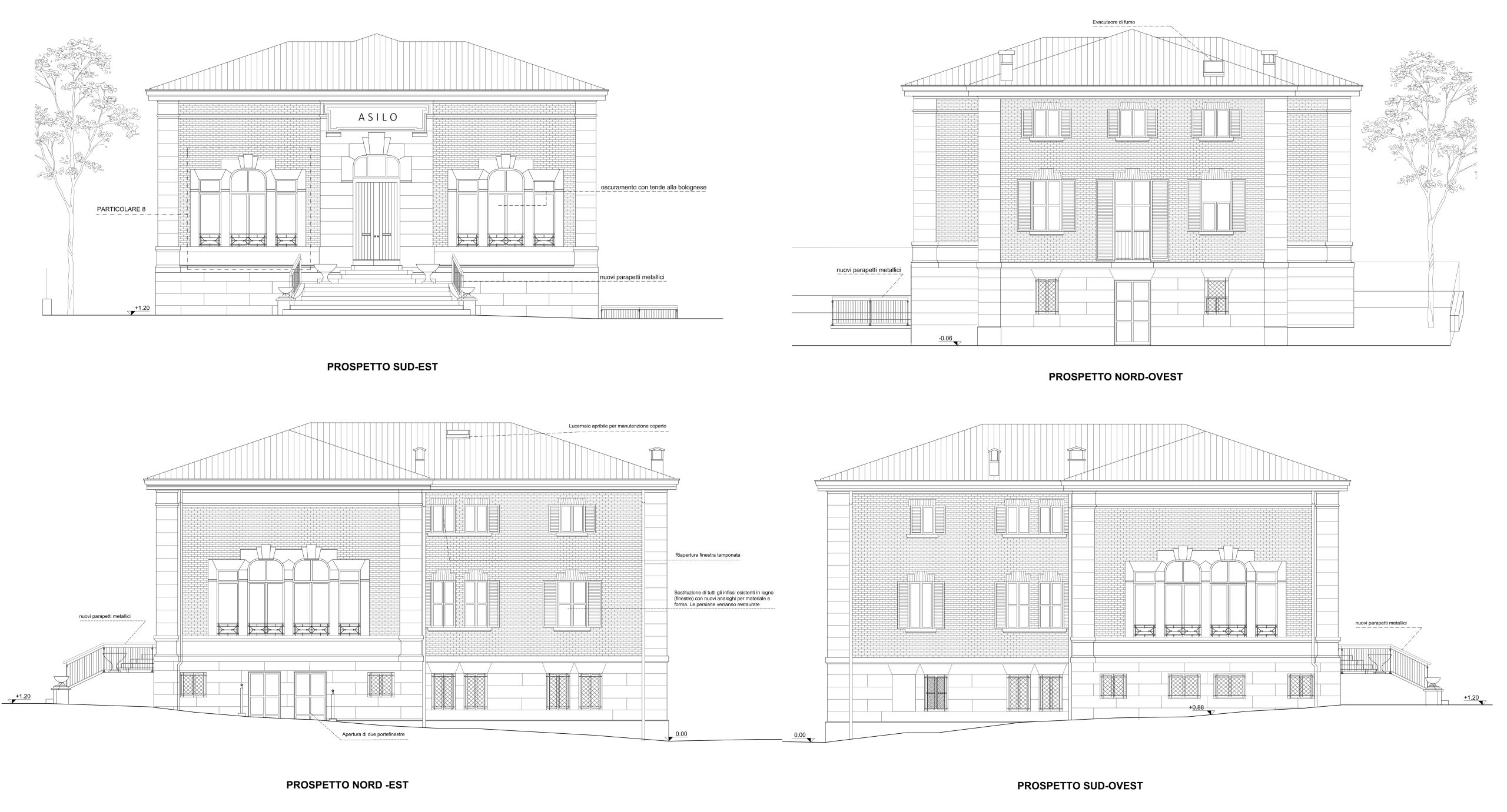
La scuola d’infanzia “Toschi-Cerchiari” è un edificio di particolare interesse storico-artistico realizzato nei primi anni ’30 del secolo scorso.
L’edificio ha mantenuto la funzione scolastica fino a che pochi anni fa poi interrotta perché bisognoso di interventi manutentivi e di adeguamento alle nuove norme che disciplinano gli edifici scolastici.
Sono STATI necessari interventi per il miglioramento della risposta sismica dell’immobile, adeguamenti utili al superamento delle barriere architettoniche, agli impianti meccanici ed elettrici.
Fra gli interventi di miglioramento sismico sono STATI previsti, oltre alla riparazione delle lesioni, l’infissione di catene metalliche, rinforzi di muratura con l’impiego di reti in filo di vetro e HC, la realizzazione di un piano calpestabile nel sottotetto e il rifacimento delle coperture mantenendo le geometrie e le quote esistenti.
SONO STATI rivisitati i servizi igienici, RICOLLOCATA LA CENTRALE TERMICA PREVIA DEMOLIZIONE DELLE SUPERFETAZIONI ESTERNE e riproposte, grazie alle indagini svolte, le finiture originali.


















