Progetti
Tipologia
LAVORI DI ADEGUAMENTO SISMICO ED EFFICIENTAMENTO ENERGETICO DELLA SCUOLA SECONDARIA DI PRIMO GRADO E DELL’INFANIA STATALE “SANTE ZENNARO” IN IMOLA.
Luogo
IMOLA (BO)
Anno
2021-2022
Cliente
AREA BLU
Importo lavoro
1.520.000 €
Superficie
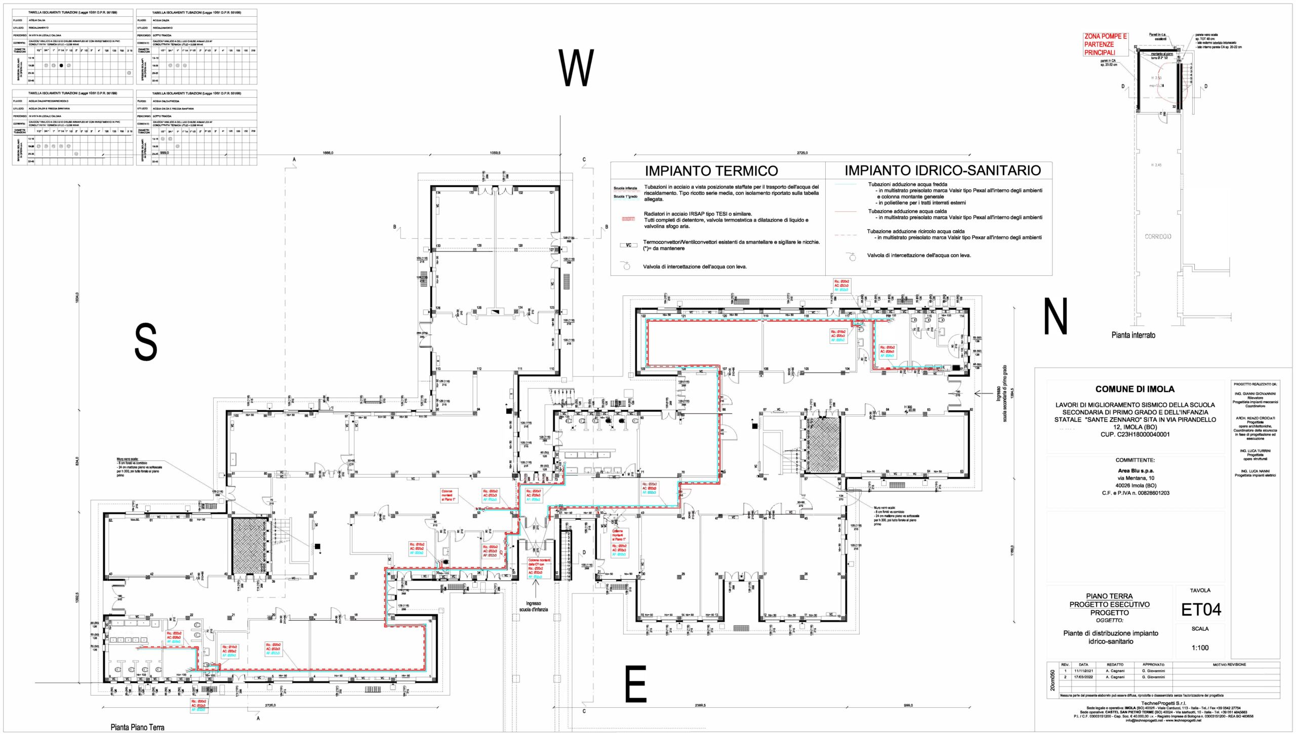
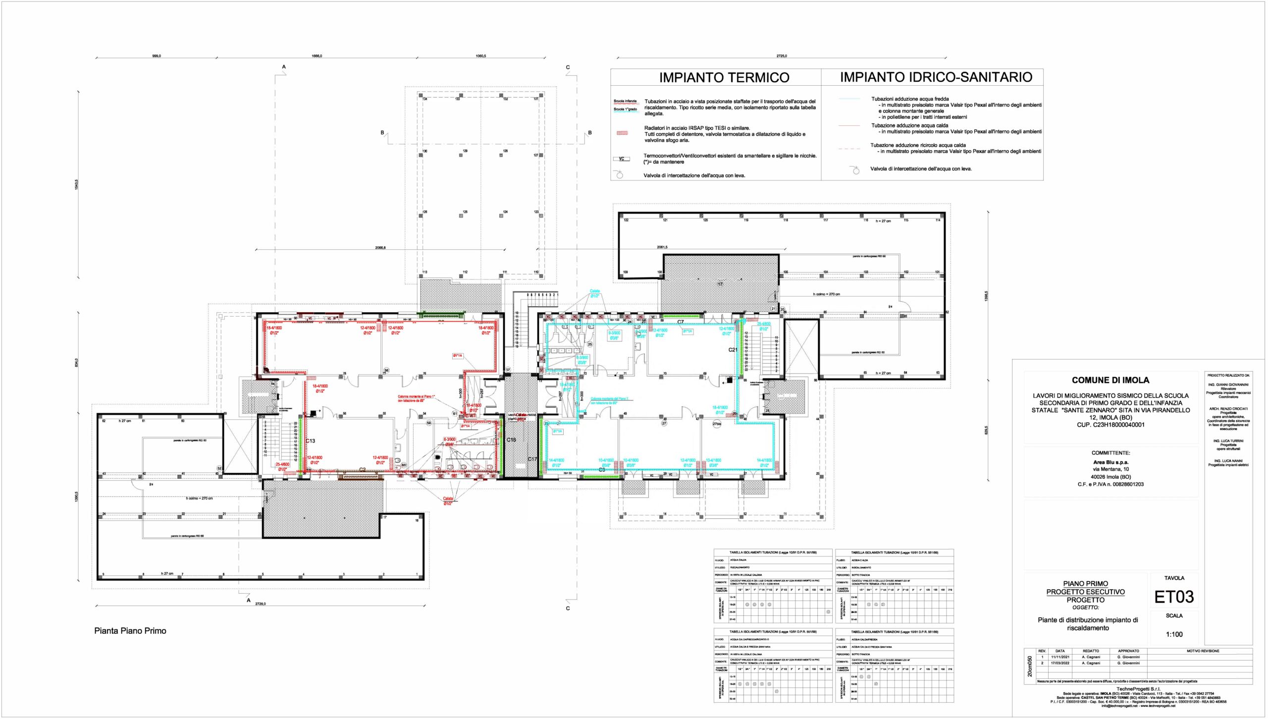
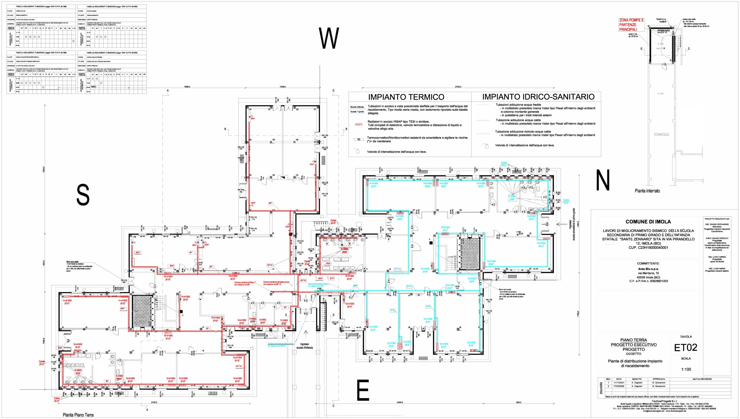
In relazione ai risultati della valutazione della sicurezza eseguito nel 2015 che hanno mostrato notevoli carenze del fabbricato sia in relazione a collassi globali della struttura sia in relazione all’innescarsi di meccanismi di tipo locale, (si veda la relazione conclusiva della valutazione della sicurezza e la relazione tecnica strutturale), il progetto ha previsto di intervenire per risolvere e migliorare il comportamento della struttura in presenza di azioni orizzontali per le quali il fabbricato non è dotato di risorse considerata l’epoca di costruzione. Abbinati a questi interventi è stato previsto il rifacimento degli impianti idrico, termico ed elettrico.
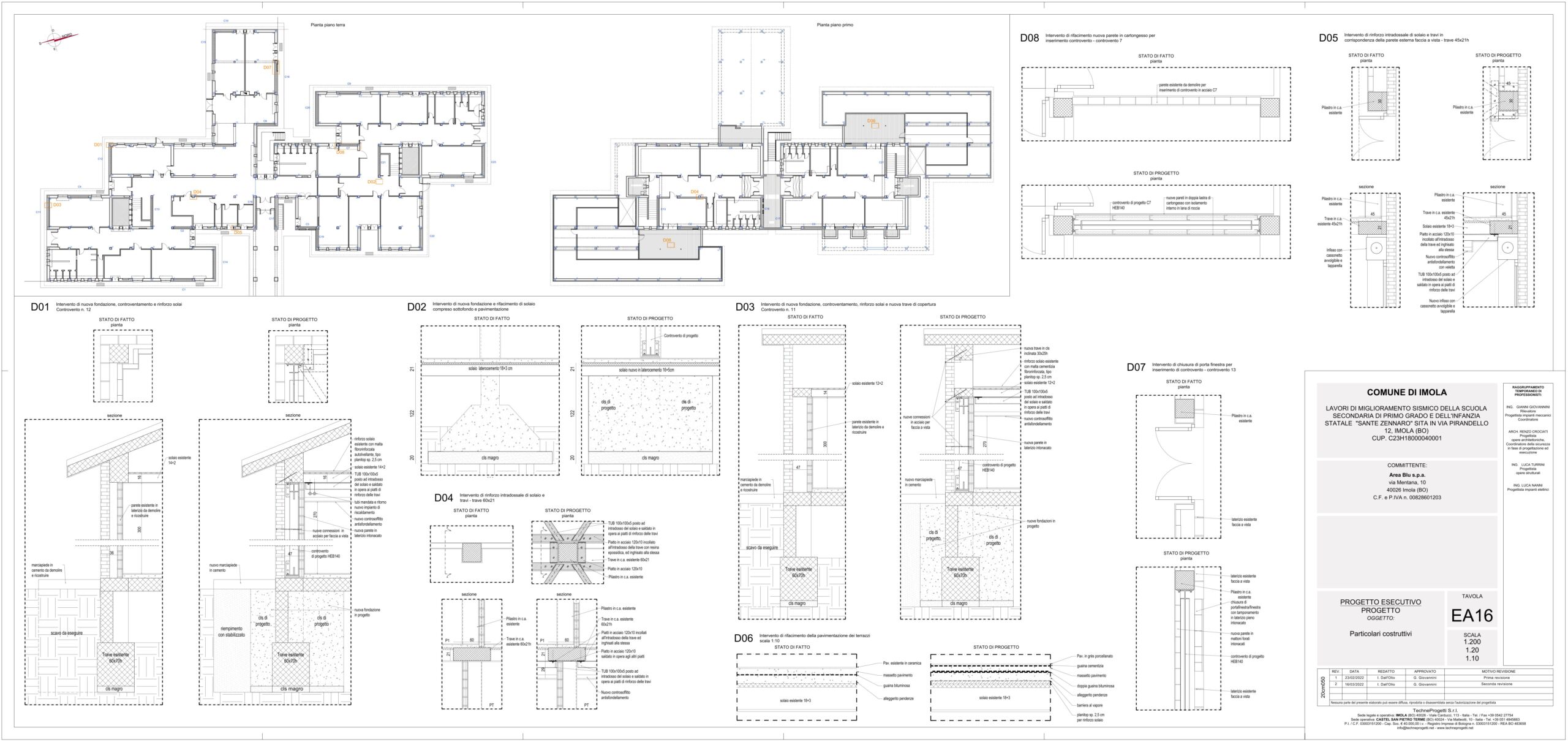
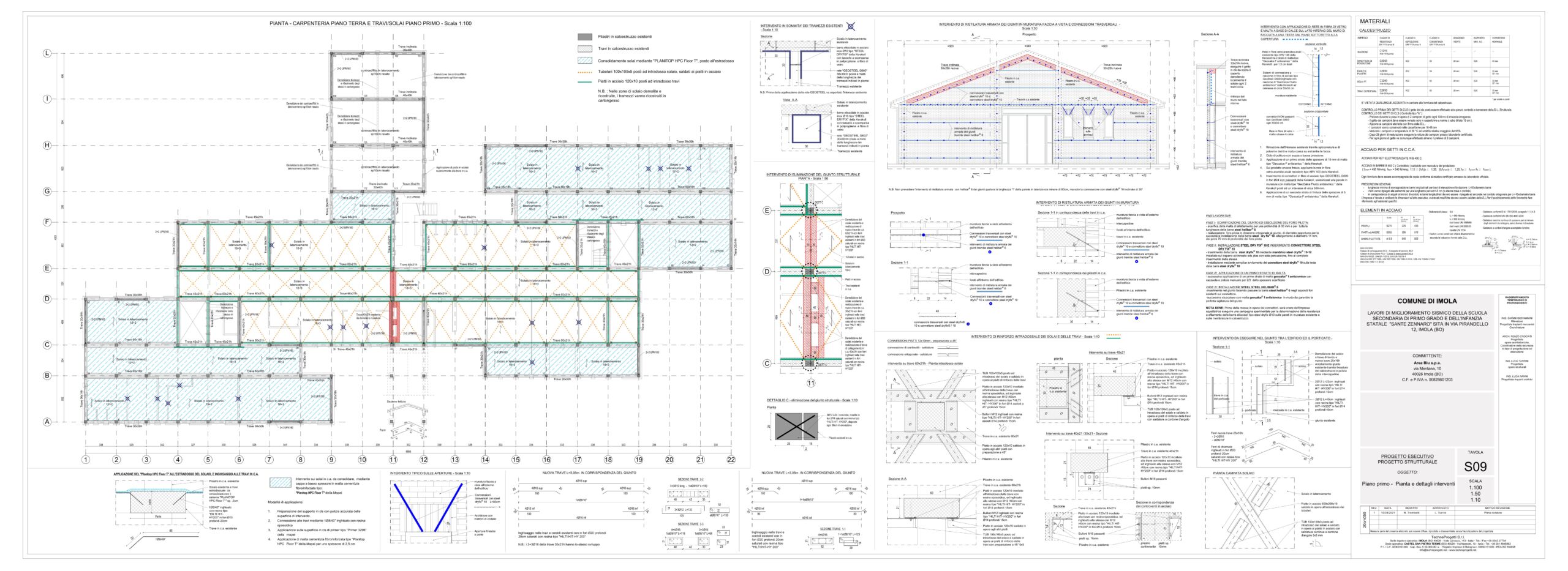
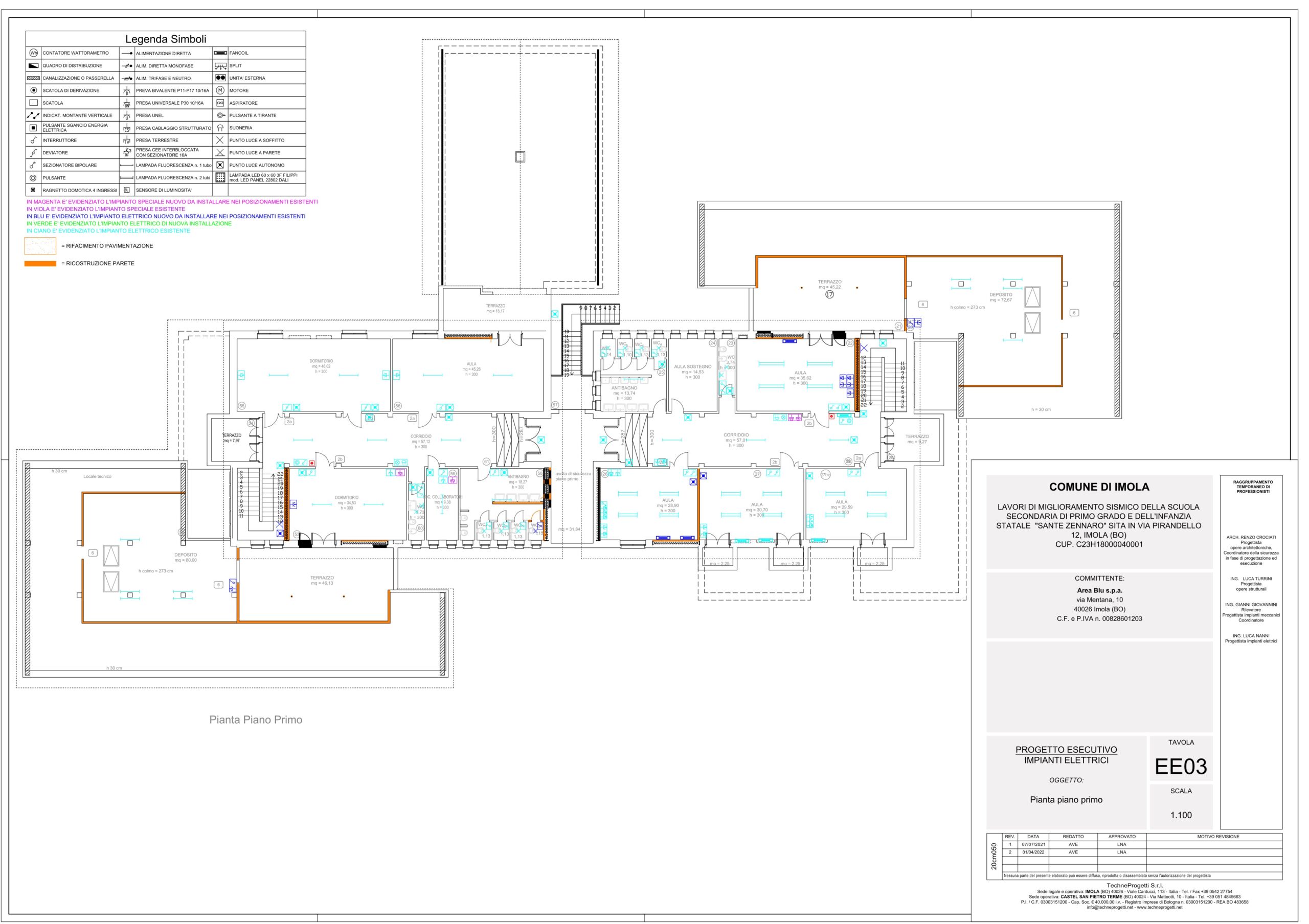
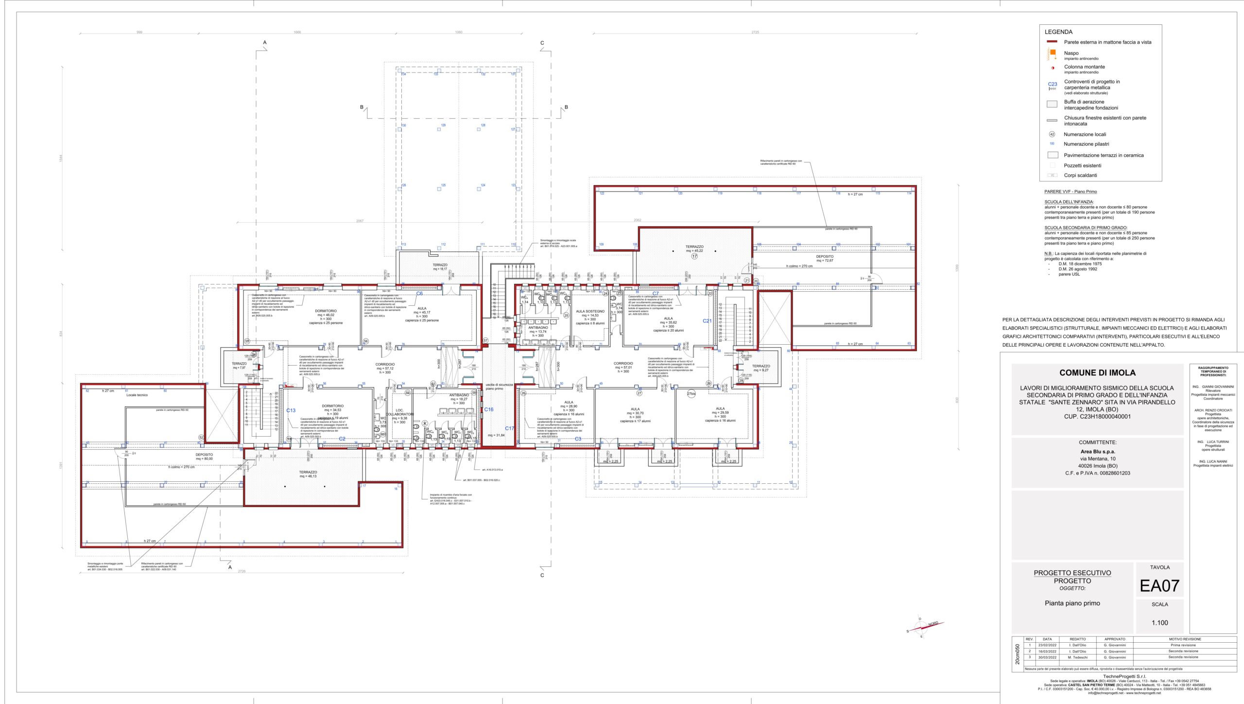
L’intervento previsto ha riguardato principalmente il piano terra dove si sono concentrati gli interventi di controventatura, i miglioramenti delle fondazioni, il consolidamento intradossale del solaio del piano primo, il rinnovo delle dorsali impiantistiche, la conseguente realizzazione di controsoffitto con caratteristiche di antisfondellamento e il rinnovo delle finiture interessate dagli interventi nei limiti economici dell’importo finanaziabile.
Al piano Primo si sono previsti interventi maggiormente localizzati per conservare gli ambienti oggetto di recenti interventi di adeguamento antincendio. Si prevede infatti la continuazione di 6 controventi dal piano terra, il consolidamento dei solai del piano primo e del piano secondo in corrispondenza dei sottotetti non abitabili, il collegamento degli impianti esistenti alle nuove dorsali provenienti dal Piano Terra.
Al fine di perseguire gli obiettivi auspicati il progetto è intervenuto principalmente nel rinforzare la struttura esistente e per migliorare la sua risposta sismica come di seguito sommariamente descritto:
- inserendo opportuni “controventi metallici” localizzati in modo da equilibrare la resistenza sismica della struttura,
- intervenendo sulle fondazioni in corrispondenza dei nuovi controventi per adeguarle ai nuovi carichi previsti in caso di sisma;
- rifacimento di porzioni dei solai del piano terra per l’esecuzione dei nuovi controventi con nuovi solai in laterocemento collegati agli esistenti;
- Migliorando le strutture del vano tecnico interrato con esecuzione di nuova platea di fondazione e nuove pareti in calcestruzzo armato e conseguente rifacimento della parte impiantistica della sotto centrale;
- aumentando la rigidezza dell’attuale impalcato del piano primo mediante rinforzo all’intradosso con profilati metallici per il solaio corrispondente alla proiezione del piano primo ad uso scolastico;
- aumentando la rigidezza dell’attuale impalcato del piano primo mediante rinforzo all’estradosso con getto di speciale soletta fibrata per le rimanenti porzioni di solai di piano in corrispondenza dei sottottetti esistenti non abitabili;
- aumentando la rigidezza degli attuali impalcati del piano sottotetto a soffitto del piano primo mediante rinforzo all’estradosso con getto di speciale soletta fibrata in corrispondenza dei sottottetti esistenti non abitabili;
- nella demolizione di controsoffitto pesante in laterizio posto nel corpo a Ovest della scuola dell’infanzia e sostituzione con controsoffitto antisfondellamento;
- Nel rinforzo estradossale delle travi longitudinali parallele alla linea di gronda sia del corpo a Ovest suddetto che nei due corpi a due piani;
- Nella ristilatura dei giunti del paramento murario facciavista con idonee barre collegate a connettori di collegamento fra facciavista e sottostante struttura e/o tamponamenti interni
- Nel rinforzo con intonaco armato delle pareti faccia vista ad una sola testa che proseguono oltre i piani abitabili nei sottotetti e risultano privi della fosera interna;
- Nel Collegamento dei tramezzi in laterizio esistenti con il solaio soprastante mediante reti e barre;
- Eliminazione del giunto esistente fra i due corpi in corrispondenza dell’ingresso alla scuola d’infanzia sia intervenendo nel solaio del piano terra che nel solaio del piano primo;
- Regolarizzazione del giunto fra la tettoia di Ingresso alla Scuola dell’Infanzia e il portico esterno di collegamento fra i vari Padiglioni del Complesso.


















