Progetti
Tipologia
Scuole
Luogo
Imola (BO)
Anno
2019-2020
Cliente
Città Metropolitana di Bologna
Importo lavoro
462.799,45
Superficie
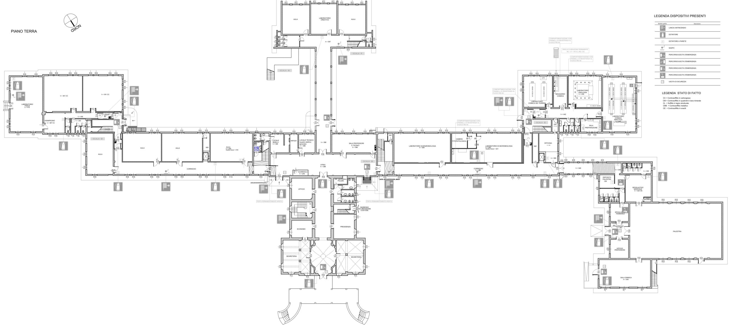
ADEGUAMENTO ALLA NORMATIVA ANTINCENDIO PER IL RILASCIO DEL CERTIFICATO DI PREVENZIONE INCENDI
Progetto svolto da: Ing. Gianni Giovannini, Arch. Renzo Crociati
Prestazioni eseguite: Progettazione Esecutiva edile, Impianti elettrici e Idrici antincendio, Coordinamento alla Sicurezza in fase di progettazione ai fini del rilascio del Certificato di Prevenzione Incendi (edificio con vincolo monumentale)
Le diverse fasi progettuali redatte hanno riguardato i lavori edili e impiantistici da eseguire, ai fini dell’ottenimento del Certificato di Prevenzione Incendi dei due Istituti Tecnici scolastici posti a Imola e di proprietà della città Metropolitana di Bologna: Istituto Tecnico Agrario “Giuseppe Scarabelli” sito in via Ascari 15 e l’ Istituto Professionale “Luca Ghini” sito in Viale Francesco D’Agostino, 2/B
I lavori previsti hanno riguardato la seguente tipologia di opere:
– Adeguamento degli impianti elettrici e di allarme e emergenza alle normative vigenti
rispetto a quanto attualmente realizzato e certificato;
– Adeguamento degli impianti antincendio e gas metano (dove presente) alle normative
vigenti rispetto a quanto attualmente realizzato e certificato;
– Opere edili relative alla sostituzione di porte REI e Maniglioni quando non certificate,
controllo e eventuale sostituzione dei controsoffitti esistenti (in particolare quelli a quadrotti
in fibra minerale), inserimento di canne fumarie per l’aerazione dei filtri fumo, la placcatura
di pareti con lastre ignifughe, interventi di allargamento murario per adeguare la larghezza
di alcune vie di fuga, ecc















